Herbstedition:
STATDHAUS CREMLINGEN mit Anbau

Erdgeschoss
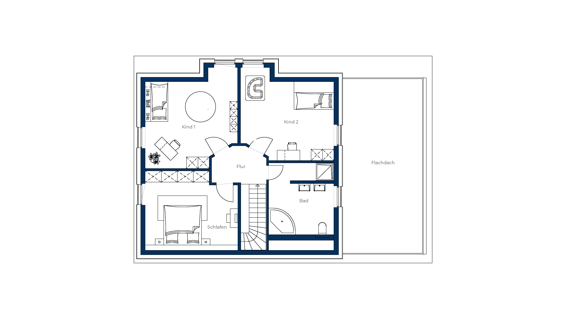
Dachgeschoss

Cremlingen

Platz für Sie, Ihre Familie, Großeltern, erwachsene Kinder oder flexible Arbeitsräume. In jeder Lebenslage bieten wir Ihnen in unserem Stadthaus Cremlingen mit Anbau den (Frei-)Raum, den Sie benötigen.

Keyfacts

  • Zimmer

    5 (Whg. 1), 2 (Whg. 2)

  • Wohnfläche

    186 m²

  • Dach

    40° Satteldach

  • Außenmaß

    15,11 m x 10,55 m

Details

  • Wohnfläche EG Wohnung 1

    84,40 m²

  • Wohnen/Essen/Kochen

    49,54 m²

  • Gast/Hobby

    9,71 m²

  • Duschbad

    3,85 m²

  • Diele

    13,55 m²

  • Hausanschlussraum

    7,75 m²

Details Einliegerwohnung

  • Wohnfläche EG Wohnung 2

    32,37 m²

  • Wohnen/ Kochen

    13,63 m²

  • Schlafen

    11,13 m²

  • Duschbad

    3,65 m²

  • Hauswirtschaftsraum

    3,96 m²

Erdgeschoss

Erdgeschoss

Dachgeschoss

Dachgeschoss

Interesse geweckt?

Haus anfragen

Die Details machen ein
Haus zu Ihren Zuhause.

Familie Zeyen

Haus Hohen Neuendorf

"FIBAV hat uns unseren Traum vom Eigenheim erfüllt. Für die professionelle Abwicklung der Planungs- und Bauphase sind wir den Mitarbeiterinnen und Mitarbeitern der FIBAV sehr dankbar."

Wir machen ihre wünsche
Zu unserer Priorität

Sie haben eine ganz bestimmte Vorstellung Ihres Traumhauses im Kopf? Diese passt allerdings nicht mit unseren Herbsthäusern überein? Keine Sorge! Auch die individuellen Hausideen unserer Bauherren möchten wir gerne gemeinsam mit Ihnen umsetzen.

Individuell beraten lassen

Das Könnte Ihnen
auch gefallen

Ihren persönlichen
Ansprechpartner finden

Bei allen Fragen rund um Ihr Bauprojekt stehen wir Ihnen kompetent und engagiert zur Seite.

Ansprechpartner finden